活性炭粉装箱拆柜设备结合了的输送、除尘和控制系统,能够、地完成活性炭粉的装箱和拆柜作业。它主要用于从集装箱或其他存储容器中快速卸载和重新装箱活性炭粉,确保物料在转移过程中的稳定性和清洁性。

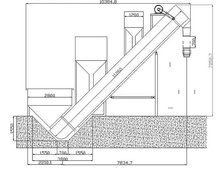
主体框架:通常由高强度钢材制成,确保设备在重载和长时间运行下的稳定性和耐用性。
输送系统:根据物料特性和作业需求,可以选择不同类型的输送设备,如螺旋输送机、斗式提升机或气力输送系统等。这些设备能够将活性炭粉从集装箱中输送到指定位置,或将其重新装箱。
除尘系统:活性炭粉在装卸过程中容易产生粉尘,因此设备配备了的除尘系统。该系统通过负压吸尘、脉冲喷吹等技术,清除作业现场产生的粉尘,保持作业环境的清洁和卫生。
控制系统:集成电控柜、触摸屏操作界面、无线遥控器等设备,实现对设备的自动控制和监控。控制系统具备故障自诊断、运行数据记录等功能,方便用户进行操作和维护。

将设备移动至待处理的集装箱旁边,并固定好设备。
打开集装箱柜门,启动输送系统,将活性炭粉从集装箱中输送到指定位置。在输送过程中,除尘系统会同时启动,清除产生的粉尘。
当物料输送完毕后,关闭输送系统和除尘系统。如果需要重新装箱,可以将活性炭粉通过输送系统重新装入集装箱或其他存储容器中。
清理作业现场,检查设备状态,准备进行下一次作业。

性:活性炭粉装箱拆柜设备具备的输送和除尘能力,能够快速完成活性炭粉的装卸作业,提高作业效率。
环保性:设备配备的除尘系统,确保作业现场无尘、,符合环保要求。
稳定性好:高强度钢材制成的主体框架和稳定的控制系统确保设备在重载和长时间运行下的稳定性。
自动化程度高:配备的控制系统和无线遥控器等设备,实现自动控制和监控,降低人工操作和维护的工作量。

活性炭粉装箱拆柜设备广泛应用于活性炭生产、环保、化工等行业,特别是在活性炭粉的装卸、中转和仓储等环节中发挥着重要作用。它能够实现对活性炭粉的、环保、稳定地装卸和运输,提高作业效率并降低环境污染。